£415,000 Sold Subject to Contract
2 Meadow Lea, Sutton-in-Craven

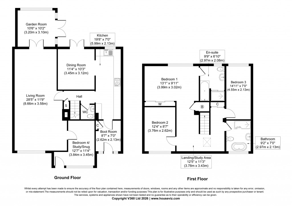
Floorplans For Meadow Lea, Sutton-in-Craven

Description


A BEAUTFULLY PRESENTED & SIGNIFICANTLY EXTENDED FAMILY HOME WITH 3/4 DOUBLE BEDROOMS, PRIVATE PARKING AND A LOVELY SOUTH FACING GARDEN

Extended by almost half of its original size, this beautifully presented family home is without doubt the biggest & best property we have had the pleasure of marketing on the popular cul-de-sac of Meadow Lea.  The accommodation now covers circa 1550 sq ft (excluding a further garden room extension) briefly including an upgraded Kitchen & open plan Dining Room, Boot Room & Cloakroom, a generous full depth Living Room and a versatile ground floor 4th bedroom or Study, complemented by 3 well proportioned first floor bedrooms, a 4 piece En-Suite and a further 4 piece House Bathroom.

Meadow Lea is ideally situated on the level within walking distance of a range of highly regarded schools including South Craven Secondary which continues to excel in Ofsted reports, also having a beautiful park, a Co-Op, many independent retail shops and popular country walks virtually on the doorstep.

Having a private garden on the south side (including a former garage come workshop) and secure treble width driveway parking to the front, the property is likely to be suited to a wide variety of prospective purchasers and in detail comprises:

TO THE GROUND FLOOR

Part glazed uPVC entrance door to:

BOOT ROOM: 8’7” x 7’0” with part matted & oak flooring and inner door to:

KITCHEN: 19’8” x 7’0” with matching oak floor, extensive range of upgraded wall and base units with oak effect worktops over, composite sink & drainer, range oven with 6 ring gas hob & extractor hood over, integrated fridge, freezer & dishwasher, modern larder cupboard, and opening to:

DINING ROOM: 11’4” x 10’3” with matching flooring, half panelled wall, radiator cover and glazed uPVC doors to the garden.

INNER HALL: with matching flooring, fitted cupboard, staircase to the first floor and CLOAKROOM: with half panelled walls, low suite w.c and wash hand basin with cupboard under.

LIVING ROOM: 28’5” x 11’9” with matching flooring, solid fuel stove and doors to the garden room and:

BEDROOM 4 / STUDY / SNUG: 12’7” x 11’4” (L-shape) a versatile room with matching flooring and self contained part glazed uPVC door to the front.

GARDEN ROOM: 10’6” x 10’2” with upgraded roof, matching flooring, mains radiator and glazed uPVC doors to the garden.

TO THE FIRST FLOOR

LANDING / STUDY AREA: 12’5” x 11’3” with Velux window and store cupboard over the stairs also housing the combination boiler.

BEDROOM 1: 13’1” x 9’11” (plus fitted wardrobes with sliding doors) with oak flooring and picture window with lovely views towards Cowling Pinnacle.

EN-SUITE: 9’9” x 6’10” a generous space with 4 piece suite comprising panelled spa bath, shower enclosure, low suite w.c, pedestal wash basin, vertical radiator, tiled walls & floor and window with frosted glass.

BEDROOM 2: 12’4” x 8’7” with oak flooring and lovely open views.

BEDROOM 3: 14’11” x 7’0” with oak flooring and views towards Cowling Pinnacle.

BATHROOM: 9’2” x 7’0” with 4 piece suite in white comprising roll edged free standing bath with shower head attachment, shower enclosure, low suite w.c, pedestal wash hand basin, vertical radiator, half panelled walls and larger dormer window with fitted blind.

TO THE OUTSIDE

There is treble width flagged driveway parking to the front.

The rear garden is part flagged & lawned with established borders including a further flagged area with fitted seating & BBQ.  The whole is securely enclosed by panelled fencing and enjoys a favourable aspect on the south west side with lovely views towards Cowling Pinnacle.

There is also a former garage now used as a STORE / WORKSHOP: 13’0” x 9’10” with power & light, tiled floor and fitted units with worktops.

COUNCIL TAX BAND: Band C.

SERVICES: Mains gas, water, drainage and electricity are connected to the property.  The heating/electrical appliances and any fixtures and fittings included in the sale have not been tested by the Agents and we are therefore unable to offer any guarantees in respect of them.

TENURE: The property is freehold and vacant possession will be given on completion of the sale.

POST CODE: BD20 8BY

VIEWING: Please contact the Selling Agents, Messrs. Wilman and Wilman on telephone 01535-637333 who will be pleased to make the necessary arrangements and supply any further information. 

PRICE: £415,000

For further details on this property please give our office a call
01535 637333

ARRANGE A VIEWING


Share:

Book a viewing for this property

Simply fill out the form below


* Mandatory fields