NO CHAIN £150,000 Sold Subject to Contract
10 Croft Street, Glusburn

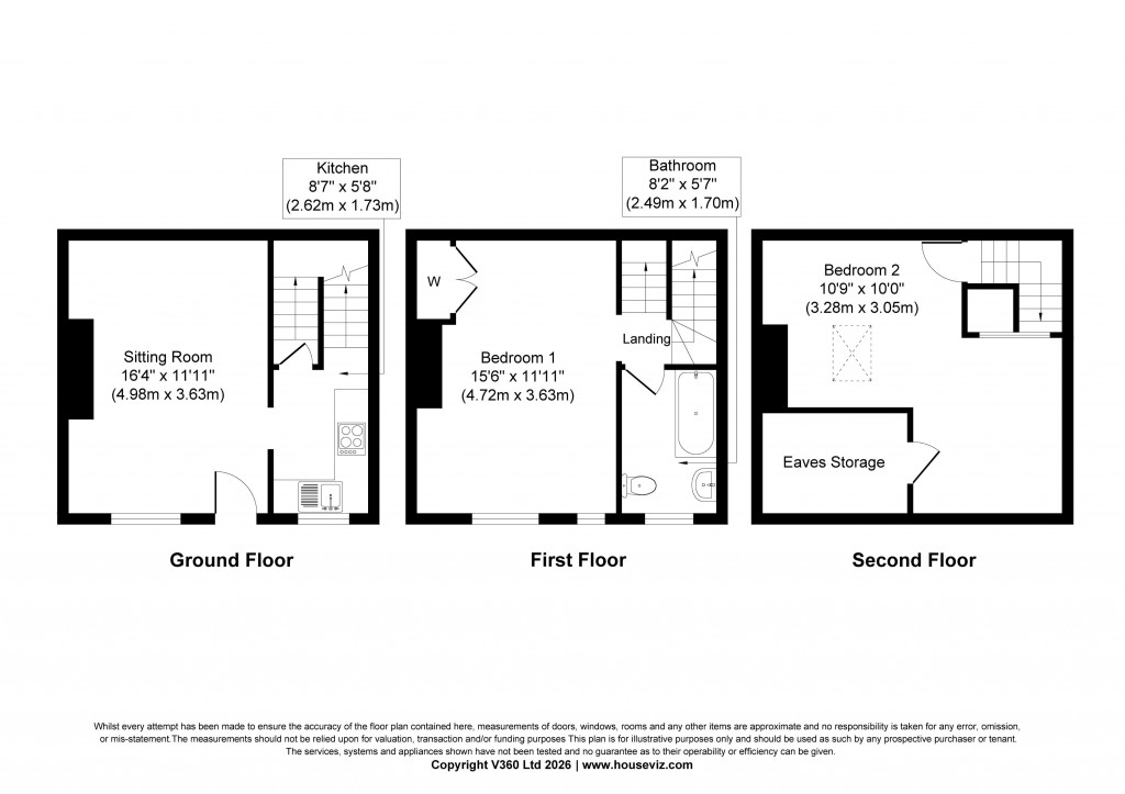
Floorplans For Croft Street, Glusburn

Description


A DECEPTIVELY SPACIOUS 2 DOUBLE BEDROOMED BACK-TO-BACK TERRACED PROPERTY WITH A USEFUL KEEPING CELLAR, SMALL YARD AND PRIVATE PARKING CLOSE TO A RANGE OF SCHOOLS, SHOPS AND SERVICES

This traditional back-to-back terrace is conveniently situated within short walking distance of Glusburn Primary School and the nearby village of Cross Hills which provides a wide range of everyday amenities and the much sought after South Craven Secondary school.

The modern accommodation includes a Sitting Room, Kitchen, a stylish Bathroom suite and two well proportioned Bedrooms at 1st & 2nd floor level, along with a useful Cellar/Utility; externally having a small yard to the front which enjoys a pleasant westerly aspect.

Ready-made for a variety of purchasers and offered with no forward chain the property in detail comprises:

TO THE GROUND FLOOR

uPVC entrance door to:

SITTING ROOM: 16’4” x 11’11” with electric fire, dado rail and alcoves to the side of the chimney breast.

KITCHEN: 8’7” x 5’8” range of wall and base units with laminate worktops over incorporating electric oven, 4 ring gas hob with extractor hood over, stainless steel sink unit and drainer, part tiled walls, space for undercounter fridge, tiled floor and access to:

CELLAR: 8’7” x 5’9” with further cellar head storage, a very useful storage space with washer plumbing and an extractor fan.

TO THE FIRST FLOOR

BEDROOM 1: 15’6” x 11’11” with 2 windows, cupboard housing the Ideal combination boiler and deep wardrobe.

BATHROOM: 8’2” x 5’7” comprising panelled shower bath with thermostatic shower over and glass screen, low suite w.c. pedestal wash hand basin, tiled walls, vinyl floor and frosted uPVC window.

TO THE SECOND FLOOR

BEDROOM 2: 10’9” x 10’0” plus further storage space under the eaves with Velux window and excellent storage facilities.

TO THE OUTSIDE

There is an enclosed yard bounded by stone walls and trellis fencing, having a pleasant westerly aspect.

Private street parking is available directly in front of the property.

COUNCIL TAX BAND: Verbal enquiry reveals that this property has been placed in Council Tax Band A.

SERVICES: Mains gas, water, drainage and electricity are connected to the property. The heating/electrical appliances and any fixtures and fittings included in the sale have not been tested by the Agents and we are therefore unable to offer any guarantees in respect of them.

POST CODE: BD20 8QE

TENURE: The property is freehold and vacant possession will be given on completion of the sale.

VIEWING: Please contact the Selling Agents, Messrs. Wilman and Wilman on telephone 01535-637333 who will be pleased to make the necessary arrangements and supply any further information.

PRICE: £150,000 – NO CHAIN

For further details on this property please give our office a call
01535 637333

ARRANGE A VIEWING


Share:

Book a viewing for this property

Simply fill out the form below


* Mandatory fields