£425,000 For Sale
5 Mount Pleasant, Glusburn

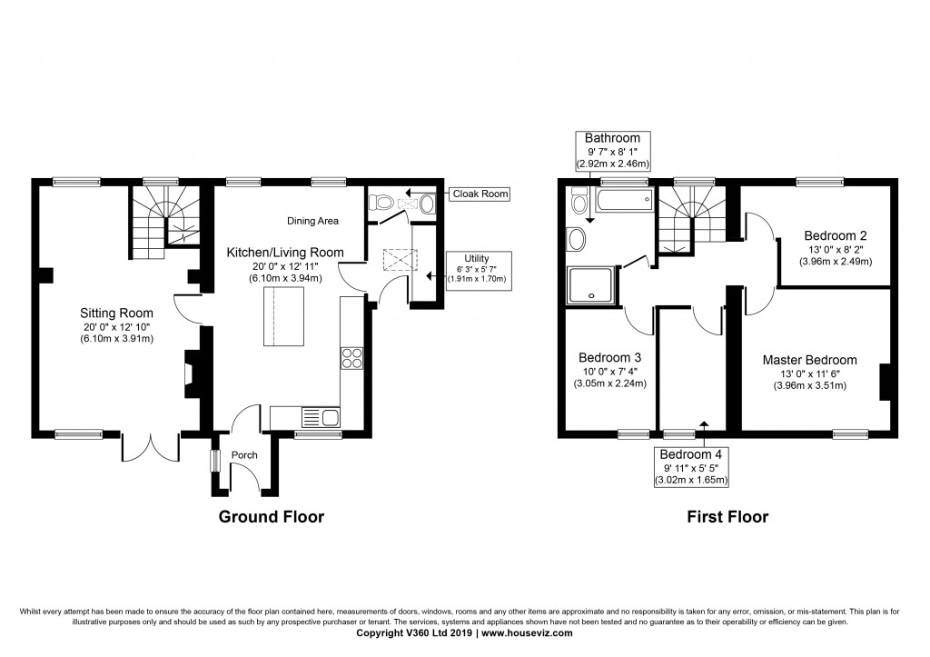
Floorplans For Mount Pleasant, Glusburn

Description


A BEAUTIFULLY RESTORED STONE BUILT 4 BEDROOMED PERIOD COTTAGE WITH A GARAGE, SOUTH FACING LAWNED GARDENS AND SPECTACULAR LONG DISTANCE VIEWS

Constructed from 2 adjoining stone built cottages which now forms a superb double fronted semi-detached family home, this interesting property occupies a lovely elevated position in a highly regarded & much coveted residential location, backing onto open fields with beautiful landscaped gardens to the front and truly breathtaking long distance views beyond.

Significantly improved by the current owner with particular reference to the generous Living Kitchen and 4 piece Bathroom, the well proportioned 4 Bedroomed accommodation also includes a Cloakroom & Utility and a lovely through Sitting Room with a solid fuel stove and doors to the south facing garden.

The property has the benefit of a single garage and a parking space (a larger parking area could potentially be created at the bottom of the garden).  There is also scope to extend to the gable end of the house above the utility to provide an en-suite to the master bedroom.

Exuding an aura of real quality and substance and containing many original period features, this exceptional property will appeal to prospective purchasers seeking an individual home in a thriving village community, with the accommodation in detail comprising:

TO THE GROUND FLOOR

Part glazed uPVC door with frosted glass to:

PORCH: 4’6” x 4’0” with coat hooks, Quarry tiled floor and part glazed inner door to:

LIVING KITCHEN: 20’0” x 12’11” with range of wall and base units in pastel green with Oak working surfaces over incorporating Belfast sink unit, range cooker with 5 ring gas hob and attractive red brick back interior, integrated dishwasher, ceiling downlights, Oak flooring, large Breakfast Bar with matching Oak top, integrated fridge/freezer and a shallow step up with open plan access to: 

DINING AREA: with matching flooring, wall TV point, 2 stylish ceiling downlights and 2 windows with views over open fields to the rear.

SITTING ROOM: 20’0” x 12’10” a lovely through room with cast iron solid fuel stove with stone surround & hearth with rustic red brick interior, 2 wall light points, TV point, painted beamed ceiling, uPVC glazed doors to the front garden, attractive stone pillars on 2 sides, views to the front & rear and open return spindled staircase to the first floor.

UTILITY ROOM: 6’3” x 5’7” with wall and base units with worktops over, washer plumbing and space for a dryer, Velux roof light, Baxi gas fired combination boiler, half glazed external uPVC door and vinyl flooring.

CLOAKROOM: half tiled containing high suite w.c, bracket wash hand basin, 2 wall light points, Velux roof light and vinyl flooring.

TO THE FIRST FLOOR

BALCONY LANDING: 14’4” x 9’8” (max over the stairs) with access to roof void and rear window with views over open fields.

BEDROOM 1: 13’0” x 11’6” with attractive cast iron fireplace, coved ceiling, original battened door, laminate flooring and superb open views.

BEDROOM 2: 13’0” x 8’2” with coved ceiling, access to roof void and views over fields to the rear.

BEDROOM 3: 10’0” x 7’4” with far reaching views towards Sutton Clough.

BEDROOM 4: 9’11” x 5’5” with coved ceiling and far reaching views towards Sutton Clough.

BATHROOM: 9’7” x 8’1” (max L-shape) with 4 piece suite comprising panelled bath with shower head attachment, low suite w.c, pedestal wash basin, large shower enclosure with dual heads & sliding glass doors, fully tiled walls, ceiling downlights, extractor fan, tall chrome ladder radiator, Oak laminate flooring, fitted cupboard and large uPVC window with frosted glass.

TO THE OUTSIDE

A private drive provides parking for 1 car and gives access to a detached single GARAGE: 22’0” x 8’11” with up-and-over door. 

Curved stone steps lead up to a raised garden which is an outstanding feature, being predominantly lawned with a flagged patio, cobbled & rustic brick pathways, a rockery, flower beds, vegetable patches, bird bath, stone trough, greenhouse and a timber arbour.

There is also a stone outbuilding to the gable end of the house and a useful timber shed.

Superb elevated southerly views can be enjoyed from the whole of the front garden.

SERVICES: Mains electricity, gas, water and drainage are connected to the property. The heating/electrical appliances and any fixtures & fittings included in the sale have not been tested by the Agents and we are  therefore unable to offer any guarantees in respect of them.

POST CODE: BD20 8RN

COUNCIL TAX: Verbal enquiry reveals that this property has been placed in Council Tax Band D.

TENURE: The property is freehold and vacant possession will be given on completion of the sale.

VIEWING: Please contact the Selling Agents, Messrs. Wilman & Wilman on telephone 01535-637333 who will be pleased to make the necessary arrangements and supply any further information.

PRICE: £425,000

For further details on this property please give our office a call
01535 637333

ARRANGE A VIEWING


Share:

Book a viewing for this property

Simply fill out the form below


* Mandatory fields