£169,950 Sold Subject to Contract
66 Keighley Road, Cowling

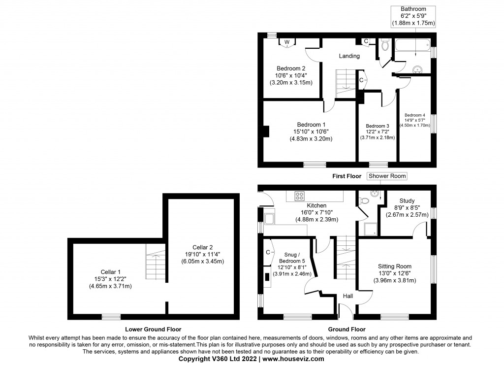
Floorplans For Keighley Road, Cowling

Description


AN IMPOSING DOUBLE FRONTED END TERRACED HOUSE WITH 4/5 BEDROOMS COVERING 3 FLOOR LEVELS SITUATED IN THE POPULAR SEMI-RURAL VILLAGE OF COWLING

Having an interesting history with part of the property originally being used a shop, this end terraced house consequently provides a larger than expected floor area of 1675 sq ft including 2 very useful & versatile full head height rooms to the lower ground floor.

The unusually versatile accommodation also includes: a Sitting Room, Study, Kitchen, Shower Room and Snug or 5th Bedroom (with an additional bunk bed) to the ground floor, having a more conventional first floor layout with a Shower Room and 4 good sized Bedrooms.

Handily located close to the village pub, convenience store and a highly regarded primary school, this individual property will be well suited to a large family or to an investor with a view to it being run as a holiday let or Airbnb.

Offering value for money for a house of this size, the accommodation in detail comprises:

THE GROUND FLOOR

Entrance door to:

HALL: with staircase to the first floor.

SITTING ROOM: 13’0” x 12’6” with electric fire and windows on 2 sides.

STUDY: 8’9” x 8’5” with fitted bunk bed and high-level store cupboards.

SNUG / BEDROOM 5: 12’10” x 8’1” with feature stone fireplace, original fitted cupboards, windows on 2 sides and ladder access to a bunk bed extending over the hallway.

KITCHEN: 17’0” x 10’10” with wall & base units in cream with worktops over, oven & 4 ring electric hob with extractor hood over, washer plumbing, half glazed external uPVC door and stairs to the lower ground floor.

SHOWER ROOM: with shower enclosure and low suite w.c.

THE LOWER GROUND FLOOR 

WORKSHOP / CELLAR 1: 15’3” x 12’2” with full head height, natural light and fitted shelves.

LIVING ROOM: 19’10” x 11’4” with full head height providing versatile usage.

THE FIRST FLOOR

LANDING: with fitted cupboards.

BEDROOM 1: 15’10” x 10’6” with cast iron fireplace.

BEDROOM 2: 10’6” x 10’4” with fitted wardrobe.

BEDROOM 3: 12’2” x 7’2”. 

BEDROOM 4: 14’9” x 5’7”.

SHOWER ROOM: 6’2” x 5’9” with modern walk-in shower enclosure, low suite w.c, window with frosted glass and separate w.c.

TO THE OUTSIDE

There is private street parking to the gable end.

SERVICES: Mains gas, water, drainage and electricity are connected to the property.  The heating/electrical appliances and any fixtures and fittings included in the sale have not been tested by the Agents and we are therefore unable to offer any guarantees in respect of them.

COUNCIL TAX BAND: Verbal enquiry reveals that this property has been placed in Council Tax Band C.

POST CODE: BD22 0BH

TENURE: The property is freehold and vacant possession will be given on completion of the sale.

VIEWING: Please contact the Selling Agents, Messrs. Wilman and Wilman on telephone 01535-637333 who will be pleased to make the necessary arrangements and supply any further information.

PRICE: £169,950

For further details on this property please give our office a call
01535 637333

ARRANGE A VIEWING


Share:

Book a viewing for this property

Simply fill out the form below


* Mandatory fields