NO CHAIN £225,000 Sold Subject to Contract
4 Lister Hill, Sutton-in-Craven

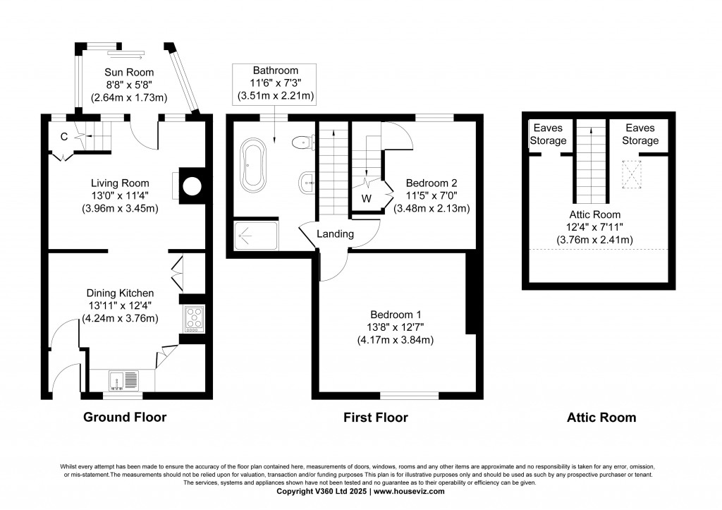
Floorplans For Lister Hill, Sutton-in-Craven

Description


A CHARMING AND DECEPTIVELY SPACIOUS 2 BEDROOMED COTTAGE WITH A SUN ROOM, CONVERTED ATTIC AND A SUNNY REAR GARDEN TUCKED AWAY IN A QUIET YET CONVENIENT LOCATION

Constructed in Yorkshire stone with a traditional grey slate roof, this interesting end terraced cottage has the rare advantage of a beautiful enclosed sun trap garden and also comprises a spacious Dining Kitchen & Living Room with flagged floors and an extended Sun Room.  To the first floor is a large Bathroom extended over the rear of a passageway, a generous Master Bedroom and a 2nd Bedroom with stairs to a useful converted Attic.

The cottage is beautifully maintained & internally insulated so should be economical to run whilst retaining a wealth of original features, being located in the original part of the village just a stroll from 2 pubs and a beautifully maintained park. 

There are 2 respected primary schools in the village and the highly regarded South Craven Secondary School in neighbouring Cross Hills, offering a wider range of shops & eateries along with a health centre, Co-Op & a regular bus service to Skipton & Keighley.

To be viewing to be fully appreciated, the accommodation comprises in more detail:

TO THE GROUND FLOOR

uPVC entrance door to:

VESTIBULE: with stone flagged floor, coat hooks, radiator and multi-paned inner door to:

DINING KITCHEN: 13’11” x 12’4” with range of larder style units and base units with oak worktops over incorporating recessed sink unit, electric range oven, 5 ring gas hob with recessed extractor hood over, integrated dishwasher, space & plumbing for washing machine, Ideal combination boiler, stone flagged floor, breakfast bar and opening to:

LIVING ROOM: 13’0” x 11’4” with matching stone flagged flooring, solid fuel stove recessed to fireplace with flagged hearth & oak lintel over, return staircase to 1st floor with storage under, feature arched window to the bottom of the stairs and glazed door to:

SUN ROOM: 8’8” x 5’8” sliding glazed door to the garden, power point and exposed stone wall.

TO THE FIRST FLOOR

BEDROOM 1: 13’8” x 12’7” with feature cast iron fireplace with flagged hearth.

BEDROOM 2: 11’5” x 7’0” with enclosed return staircase to 2nd floor attic room with store cupboard / wardrobe under.

BATHROOM: 11’6” x 7’3” comprising freestanding bath with shower head attachment, large walk-in shower enclosure with thermostatic shower, mermaid boarded walls & glass screen, low suite w.c, wash hand basin, tiled floor and frosted uPVC window.

TO THE SECOND FLOOR  

ATTIC ROOM: 12’4” x 7’11” (plus eaves storage) a very flexible room for hobbies, home office or storage with exposed beams and Velux window.

TO THE OUTSIDE

There is a low maintenance frontage with space to put a small table & chairs and pot plants. Pedestrian access to the rear is through an under passage shared with the neighbour, where there is a log store and timber shed.

The sunny rear garden consists of flagged patios with planted borders, established trees and a large summer house, being a quiet sun trap which can be difficult to find with similar cottages in the area.

COUNCIL TAX BAND: Verbal enquiry reveals that this property has been placed in Council Tax Band B.

SERVICES: Mains gas, water, drainage and electricity are connected to the property. The heating/electrical appliances and any fixtures and fittings included in the sale have not been tested by the Agents and we are therefore unable to offer any guarantees in respect of them.

POST CODE: BD20 7PD

TENURE: The property is freehold and vacant possession will be given on completion of the sale.

VIEWING: Please contact the Selling Agents, Messrs. Wilman and Wilman on telephone 01535-637333 who will be pleased to make the necessary arrangements and supply any further information.

PRICE: £225,000 – NO CHAIN

For further details on this property please give our office a call
01535 637333

ARRANGE A VIEWING


Share:

Book a viewing for this property

Simply fill out the form below


* Mandatory fields