£355,000 Sold Subject to Contract
Plot 1 Baildon Mills, Baildon

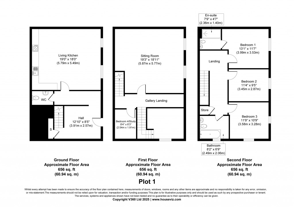
Floorplans For Plot 1 Baildon Mills, Baildon

Description


AN EXCITING OPPORTUNITY TO ACQUIRE AN APARTMENT OR TOWN HOUSE IN THE FIRST PHASE OF THE CONVERSION OF THIS HISTORIC GRADE II LISTED MILL IN THE HEART OF BAILDON CLOSE TO IDYLLIC MOORLAND

Phase one of this prestigious Grade II listed mill development is now nearing completion including a choice of 2, 3 & 4 Bedroomed Town Houses & Apartments, each offering something different with floor areas ranging from circa 600 to 2000 sq ft; all being within close proximity to the village centre with lovely moorland walks barely a stone’s throw away.

Baildon is a thriving village community where new properties in this price range are rarely offered to the open market, known for providing a range of shops & facilities and having regular network links to the larger business centres of Leeds and Manchester.

Having private designated parking and low service charges to be controlled by a self -administered management company, early reservation is highly recommended.

COUNCIL TAX BAND: TBC

SERVICES: Mains water, drainage and electricity are connected.  Gas is connected to some of the town houses.  The heating/electrical appliances and any fixtures and fittings included in the sale have not been tested by the Agents and we are therefore unable to offer any guarantees in respect of them.

POST CODE: BD17 6JX

TENURE: There is a mixture of freehold & leasehold properties. More information to follow.

VIEWING: Please contact the Selling Agents, Messrs. Wilman and Wilman on telephone 01535-637333 who will be pleased to make the necessary arrangements and supply any further information.

PRICES: £159,950 - £355,000

For further details on this property please give our office a call
01535 637333

ARRANGE A VIEWING


Share:

Book a viewing for this property

Simply fill out the form below


* Mandatory fields