Offers in Excess of £535,000 Sold Subject to Contract
Coppy Farm Barn, Coppy Road, Steeton

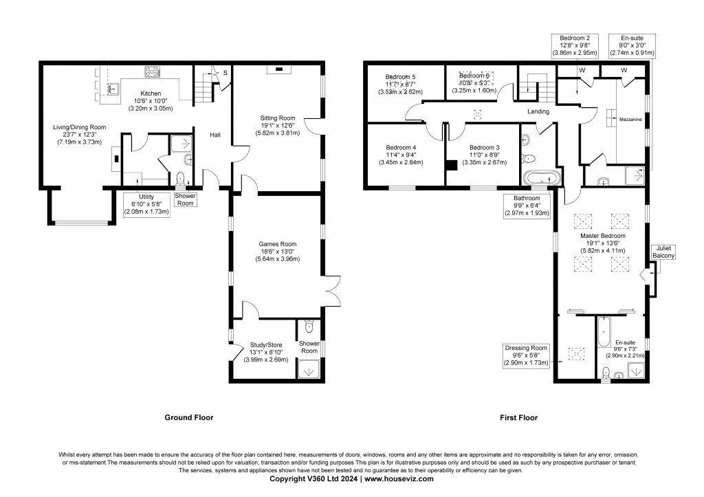
Floorplans For Coppy Road, Steeton

Description


A BEAUTIFULLY RESTORED 6 BEDROOMED BARN CONVERSION WITH MANY ORIGINAL FEATURES AND GENEROUS GARDENS COMMANDING FABULOUS ELEVATED VIEWS

 

Forming part of a conversion of a traditional semi rural farmstead, Coppy Farm Barn has recently been the  subject of full renovation by the current owners and now provides a fantastic ready-made family home with 6 well proportioned bedrooms, 5 Bathrooms and generous gardens with superb far reaching views.

Notable improvements include new windows & doors, a re-wire & new central heating system (with part under floor heating), a new kitchen with granite worktops and a superb extended Master Bedroom suite with a Juliette balcony, En-Suite & Dressing Room; the whole being presented to a very high standard with an attention to detail exemplified by bespoke skirting, architraves & windowsills.  And although the property has been fully modernised, it still retains a wonderful blend of original features including feature stone walls & beams, with a vaulted first floor ceiling exposing further roof trusses and creating a fantastic feeling of space throughout.

The property is pleasantly tucked away from the hustle & bustle of the centre of the village but is still within comfortable walking distance of a Co-Operative store, Airedale General Hospital and a train station providing excellent network links between Skipton & Leeds; with a good choice of schools also nearby including the highly regarded South Craven Secondary in neighbouring Cross Hills.

Having further potential to erect a garage/workshop, this highly individual property is recommended for closer inspection and in detail comprises:

TO THE GROUND FLOOR

Part glazed composite door to:

HALL: 16’11” x 5’6” with tiled floor (under floor heating), feature stone wall, ceiling downlights and open staircase to the first floor with store under.

KITCHEN: 10’6” x 10’0” with matching flooring (under floor heating), range of new wall and base units with granite worktops over, Belfast sink unit with instant boiling water tap, integrated fridge & freezer, integrated dishwasher, space for  range oven with extractor hood over, wine store, ceiling downlights and breakfast bar giving access to the:

DINING AREA & LIVING ROOM: 23’7” x 12’3” with matching tiled floor (under floor heating), stone fireplace with cast iron stove on flagged hearth and large picture window to the front with feature stone walls & exposed trusses.

UTILITY: 6’10” x 5’8” with matching tiled floor (under floor heating), concealed space for washer & dryer, Ideal combination boiler and base units with granite worktop.

SHOWER ROOM: 6’11” x 3’7” with matching tiled floor (under floor heating), tiled shower enclosure with dual attachments, low suite w.c, extractor fan, tiled floor and window with frosted glass & Oak sill.

SITTING ROOM: 19’1” x 12’6” with multi fuel stove within red brick chimney breast on stone flagged hearth, ceiling downlights and stable style uPVC door & 2 windows to the balcony garden.

GAMES ROOM: 18’6” x 13’0” with feature stone wall, ceiling downlights, timber panelled wall, windows on 2 sides and glazed uPVC doors to the balcony garden.

STUDY /OPTIONAL GROUND FLOOR BEDROOM: 13’1” x 8’10” with composite door to the front drive, shower, low suite w.c & wash hand basin.

TO THE FIRST FLOOR

LANDING: 22’1” x 3’1” with vaulted ceiling with exposed beams & stone walls, 2 Velux roof lights and inner landing leading to:

MASTER SUITE: 19’1” x 13’6” with windows to the front & rear, Juliette balcony & 4 Velux windows.

EN-SUITE: 9’6” x 7’3” comprising bath with tiled panel, shower enclosure with dual heads, low suite w.c, wash basin in vanity unit, electric chrome radiator, Vinyl floor, extractor fan, windows on 2 sides and Velux window.

DRESSING ROOM: 9’6” x 5’8” with Velux window.

BEDROOM 2: 12’8” x 9’8” with his & hers walk-in wardrobes with fitted rails and mezzanine with fitted wooden ladder staircase & fabulous long distance views.

EN-SUITE: 9’0” x 3’0” with tiled shower enclosure with   folding door, wash hand basin in vanity unit, chrome ladder radiator, extractor fan and tiled floor.

BEDROOM 3: 11’0” x 8’9” with open views to the front.

BEDROOM 4: 11’5” x 9’4” with open views to the front.

BEDROOM 5: 11’7” x 8’7” (L-Shape) with large Velux window.

BEDROOM 6: 10’8” x 5’3” with 2 Velux windows.

HOUSE BATHROOM: 9’9” x 6’4” with freestanding roll edged bath with chrome shower attachment, low suite w.c,  stylish towel radiator, sink unit on feature stone sill with bespoke cupboards under, tiled floor, 2 exposed stone walls and 2 windows with frosted glass.

TO THE OUTSIDE

A driveway to the front provides parking for several cars with side panelled fencing & a timber gate giving access to a part lawned and flagged garden on the south east side.

There is also a large astroturfed balcony garden with a built in BBQ, flagged patio, stone breakfast bar and superb long distance views (with access from the outside, sitting room & games room).  The grounds also include an area of hard standing at a lower level with potential to construct a garage (currently occupied by a secure lock-up unit).

SERVICES: Mains gas, water, drainage and electricity are connected to the property.  The heating/electrical appliances and any fixtures and fittings included in the sale have not been tested by the Agents and we are therefore unable to offer any guarantees in respect of them.

COUNCIL TAX BAND: Verbal enquiry reveals that this property has been placed in category F levied by Bradford Metropolitan Council.

POST CODE: BD20 6PJ

TENURE: The property is freehold and vacant possession will be given on completion of the sale.

VIEWING: Please contact the Selling Agents, Messrs.  Wilman and Wilman on telephone 01535-637333 who will be pleased to make the necessary arrangements and supply any further information. 

OFFERS IN EXCESS OF: £535,000

For further details on this property please give our office a call
01535 637333

ARRANGE A VIEWING


Share:

Book a viewing for this property

Simply fill out the form below


* Mandatory fields